无锡的“贺弄”的整体改造属于无锡古运河清明桥地区复兴保护规划的一部分。整个保护区以无锡古运河为轴,南长街为主线。南长街于2010年被列为“中国历史文化名街”。

改造前后对比

原有建筑
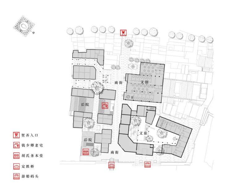
贺弄位于无锡南长街中心地段,毗邻南禅寺、清名桥、古运河等无锡知名景区。贺弄内有两所江苏省文保建筑(钱少卿老宅、胡氏务本堂)、一座明代单孔石桥(定胜桥)、一座老厂房,及一个历史传奇——“一捧雪”。无锡原城区其最初的街道以河道为基本骨架,往往“因水成街”、“因水成市”、“因水成路”,充分显现了街道对河道的依存关系。原风貌与当地自然环境、人文环境相融合,其表现为空间组合、建筑单体形式、秩序结构上高度的统一性。



改造前照片
更新策略
“保留”与“新建”,“老传统”与“新生活”。

马头墙、坡屋面、黛瓦青砖、小桥流水……几处“保留建筑”像是散落在整个地块的“遗珠”。它们融入在地块内,更像是催化剂一般,引导设计从原有的单一街巷空间转化成一组组院落空间。那些看似被打断的流线,以另一种方式围合而成。丰富、多层次、小尺度的修复性城市更新设计,维持了城市的原生肌理,同时也造就了全新空间体验,与南长街和而不同。



在建筑单体设计时以重写意、轻写实的设计理念将传统民居从江南意境中提炼出来。整个贺弄以大量的白、少量的灰、以及更少黑为基色。舍弃了部分繁复的细节,保留传统中式美学形制与轮廓组合,用现代的材料和设计手法来表达。



如用简单利落的黑色金属窗框替代传统木质窗棂。用一根连绵起伏的屋檐天际线替代了传统中式坡顶的举折。留白展现出中式意境与老宅历经岁月的沧桑感在感官上达到了某种跨越时空的呼应,古韵悠远而富于生命力。工业遗迹老厂房采用部分拆除、部分复原的方式。还原老建筑的清水砖墙细节,保留了工业建筑特有的氛围感,并用钢与玻璃将其联成整体。




实景图
整个街区以“贺弄”为主轴,联通南长街,以文创、文旅、商街、后院四种不同主题的院落。修复后老宅、厂房不显孤立,与新的街区缓缓呼应,互为应衬。
我们很高兴地看到建筑在贺弄这一空间里发挥了尽可能大的作用,为未来可能发生的各种事件埋下伏笔,做出诱导,甚至给当地人做出示范,激发出使用者们全新的想象力。这或许就是城市更新的魅力。
设计图纸

鸟瞰图

总平面图

一层平面图

二层平面图

三层平面图



